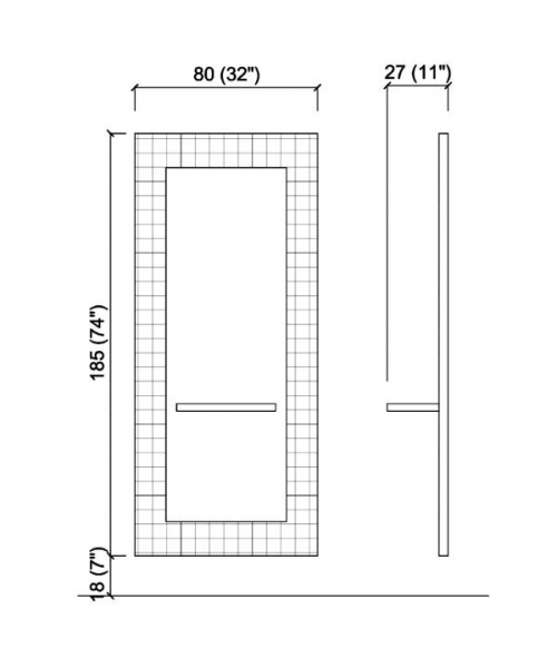
Зеркало парикмахерское "Matelassé" - прямоугольной формы. Рама зеркала выполненна в стеганной исскуственной коже черного цвета (SKAI NERO CPT). Зеркало оснащено столешницей из нержавеющей стали. Крепление к стене.
Размер (ДхШхВ): 80x27xH185 см
Стоимость модели с артикулом G-м60002735, представленной на фото, может отличаться от цены, указанной на сайте.